Yleisön pyynnöstä tässä näytille talon pohjapiirustukset 🙂 Nämä ovat sarjassamme ”suuntaa-antavat piirrokset”, eivät siis täydelliset.
Alakerta

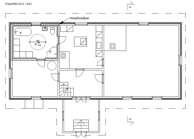
Sisään tullaan kuistin kautta, joka on tarkoitus jättää kylmäksi. Kesällä sitä koristaa runsaslukuiset, punaiset pelargoniat 😉 Kuistissa on ikkunat molemmilla sivuilla ja oven päällä. Ikkunat menevät kesällä puusepälle kunnostettavaksi.
Vintille vievät portaat ovat nyt eteisessä, mutta niiden lopullinen paikka ei ole vielä selvillä. Portaat suunnitellaan erikseen asiantuntijan kanssa. Nykyiset portaat ovat jyrkät ja kapeat, eivätkä ne täytä nykyajan vaatimuksia. Toivottavasti uudet portaat saadaan mahdutettua eteiseen, ettei niitä tarvitse laittaa pirtin puolelle. Eteinen tulee muutenkin olemaan melko haastava paikka vaatesäilytyksen ja arjen kannalta. Kovasti toivon, että eteisen ja keittiön välinen oviaukko saisi jäädä ennalleen, mutta pitää nyt katsoa miten porrasasia ratkeaa.
Eteisestä oikealle on pirtti, jossa on 48 neliötä tilaa olohuoneelle ja ruokailutilalle. Leivinuuni on vähintäänkin riittävän iso, siinä paistaa leivät samantien koko kylälle 😛 Pirtissa on kokoonsa nähden tosi vähän ikkunoita ja olemassa olevatkin ovat aika pieniä. Paikallinen puuseppä ihmetteli asiaa kun kävi katsomassa paikkoja. Vähäisen luonnonvalon takia valaistus tulee olemaan isossa roolissa. Tilasimmekin paikalliselta valaisinkauppiaalta valaistussuunnitelman. Valaistuksessa tullaan käyttämään reilusti spotteja.
Pirtistä kapea ovi vie keittiöön. Kuvassa keittiösuunnitelma on vielä vaiheessa ja saarekekin väärinpäin. Todennäköisesti keittiöön tulee suht pitkä saareke saman suuntaisesti tiskiallasseinän kanssa. Astianpesukone on oven vieressä oikealla ja uuni tiskialtaan toisella puolella. Saarekkeeseen tulee liesi. Jääkaappipakastinyhdistelmä tulee ikkunan vasemmalle puolelle. Keittiöön jää puuliesi, jolla voi keitellä hernesoppaa isommallekin porukalle.
Keittiöstä pääsee kylppäriin. Sisätiloihin ei tule saunaa. Suihkukopin lisäksi kylppäriin tulee amme, jossa voi viettää tseniläisen hetken aina kun siltä tuntuu 🙂 Saunomiset hoidetaan pihasaunassa. Kylppäriin tulee myös kodinhoitohuoneosia, jota ei vielä ole sen tarkemmin suunniteltu.
Kylppäristä on kulku myös makkariin, josta pääsee takaisin eteiseen. Makkarin nurkassa pöhisee pönttöuuni. Aivan alunperin makkarista piti tulla kylppäri ja toisinpäin. Olisihan kulku suoraan eteisestä kylppäriin ollut kätevää. Tässä kuitenkin vanha talo oli eri mieltä. Nykyisen huonejärjestyksen puolella ovat makkarin pönttöuuni, jota ei missään nimessä haluttu purkaa ja hyväkuntoiset hirsiseinät, jotka olisi ollut sääli piilottaa kaakeleiden alle. Kylppärin seinät ja lattia eivät ole niin hyvässä kunnossa ja nurkassa ollut takka oli purkukuntoinen. Näillä perusteilla kylppäri ja makkari valitsivat paikkansa.
Yläkerta
Yläkerrassa jatkuu sama trendi ikkunoiden kanssa, eli niitä on vähänlaisesti. Ikkunat ovat ainostaan molemmissa päädyissä. Yläkerran tiloissa tulee olemaan täyttä huonekorkeutta kahden metrin leveydeltä ja siitä viisto katto molempiin suuntiin. Huonejakoa ei ole vielä kovin tarkkaan suunniteltu. Tilat piti kuitenkin teknisistä syistä nimetä rakennuslupahakemukseen. Tuskinpa meille kotiteatteria oikeasti on tulossa 😉